PERFORMANCE

COMPLETED


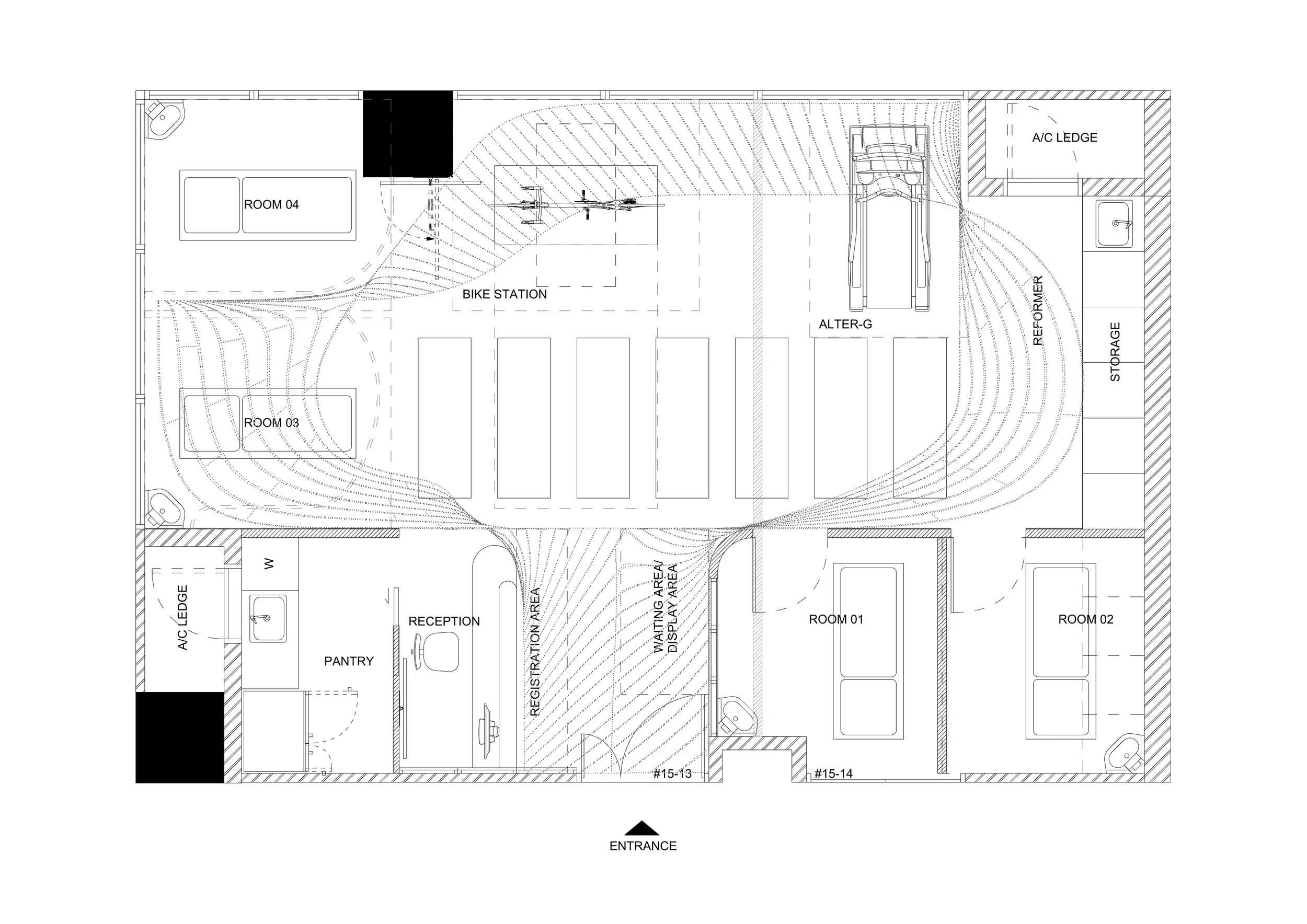
FUNCTION: Sport and Rehab Specialist Clinic

SIZE: 100 sqm

LOCATION: SINGAPORE, 101 Irrawaddy Rd, #15-13/14 Royal Square @ Novena, 329565

MATERIAL: STEEL SHEETS (POWDER COATED)


PERFORMANCE is an orthopedic and physiotherapy clinic specializing in sports-related rehabilitation treatments. Patients are guided throughout the clinic by a continuous ribbon-like structure composed of cross-lapping strips of 1mm thick powder-coated mild steel sheets.

The structure forms a Möbius loop that undulates from floor to ceiling framing the entrance, reception counter and forming the partitions for a couple of treatment rooms. This casual subdivision of treatment rooms with a combination of the perforated structure and curtains allows the treatment rooms to be left open when not in use hence allowing views over the city and for ample daylight to flood into the clinic.

The steel sheets were computationally generated, laser-cut and powder coated off-site and assembled on site using pop-rivets.


Image Gallery


CREDITS

In Collaboration with Superstructure

PHOTOGRAPHY: FrameSG

Previous
Previous

AIVEE PARAGON

Next
Next

AIVEE VERTIS